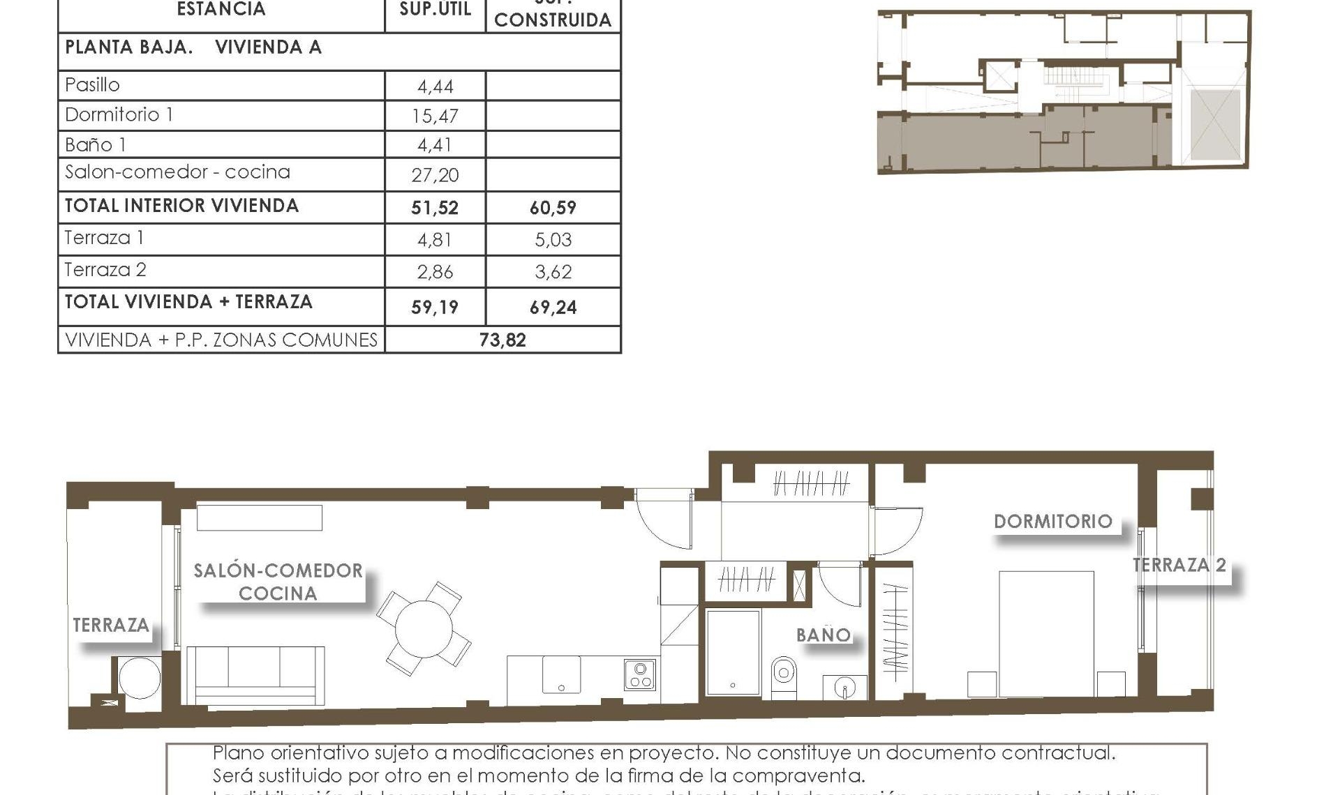
Can't create/write to file '/tmp/#sql-temptable-483-489bb-9b22.MAI' (Errcode: 28 "No space left on device")