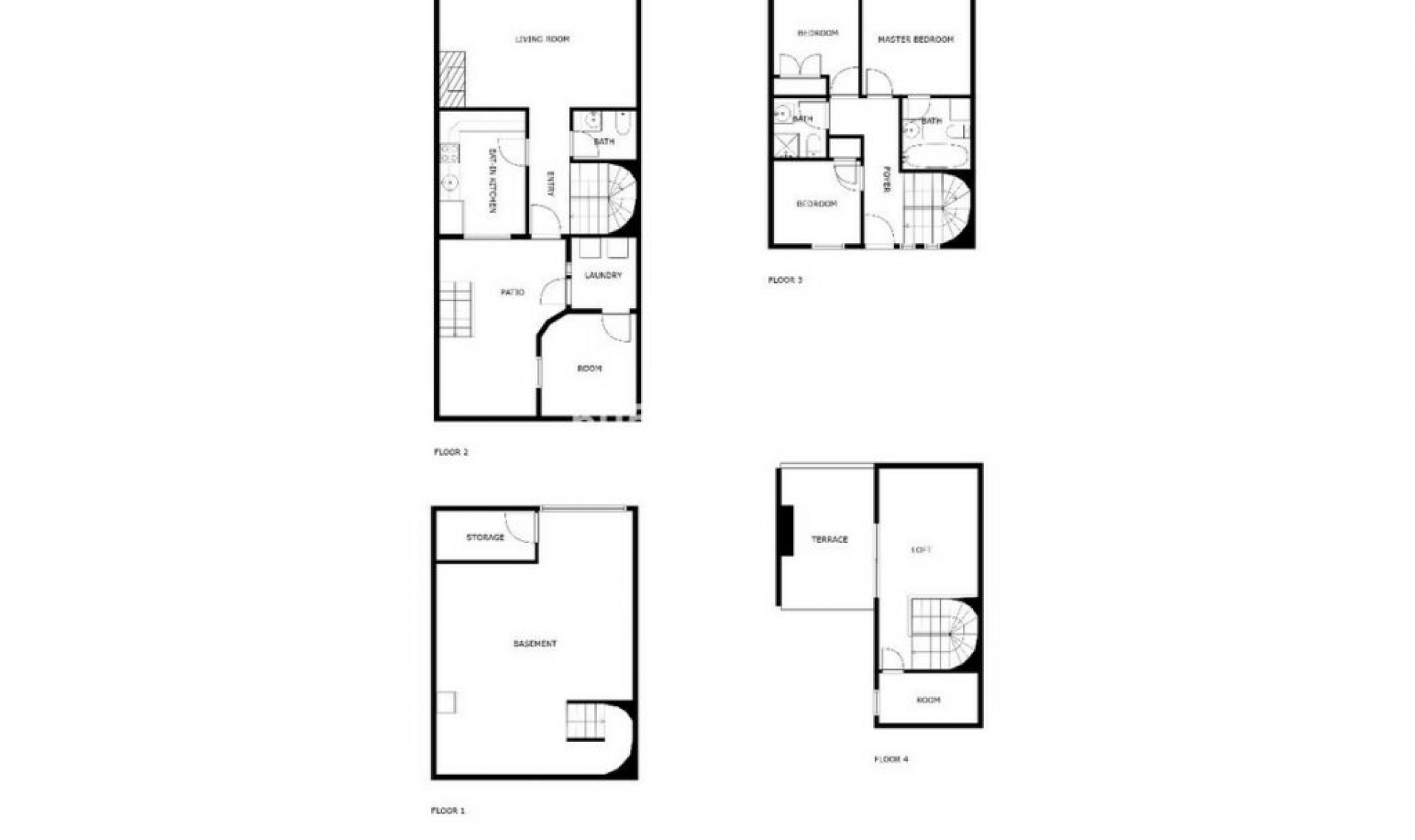
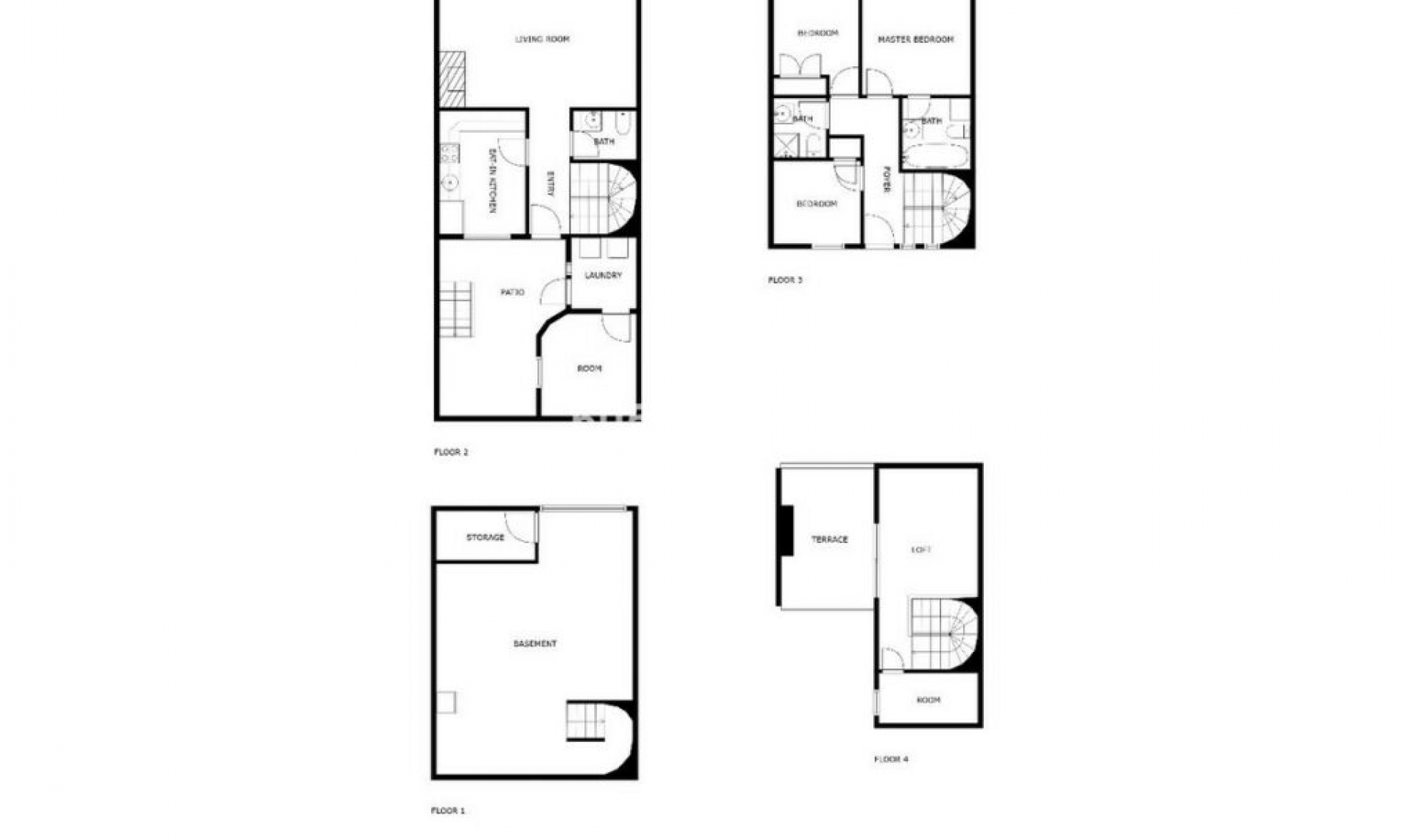
This southwest-facing house is in a fully private residential complex with three phases in the upper part of Torreblanca. The natural, tranquil, and elevated environment provides beautiful views. While the house requires some update renovations, it is in good condition and ready for a family to give it the necessary care and attention. The property has a total of 212․70 m², divided into four floors. It features 3 bedrooms, an attic, 2 bathrooms, and a guest toilet. The entrance porch to the house, measuring 24․96 m², serves as an uncovered parking space. From here, you access the upper floor of 55․96 m², which consists of three bedrooms, two bathrooms, a rear terrace, and stairs leading to the lower levels and upper attic. The ground floor, also 55․96 m², includes a fully furnished independent kitchen, a spacious living-dining room with a fireplace, a toilet, an independent porch, and a storage room of 11․33 m². The living room features a large balcony door that opens to a sunny 6․15 m² terrace, with access to a private 13․95 m² patio. The basement offers a 56․13 m² open space, accessible only via the stairs from the upper level. This area is perfect for hosting gatherings, setting up a gym, a guest area, a children's playroom, or many other possibilities. Lastly, the attic of 27․21 m² is a small room with access to a 10․54 m² terrace-solarium, offering excellent sea and mountain views. The community is very peaceful, sharing a swimming pool and garden area to enjoy all the tranquillity and privacy with your loved ones. It can be accessed from the coast, although there is also a direct connection to the El Higuerón complex, which makes entry and exit to the highway easier. Don't hesitate to request more information and schedule a visit.