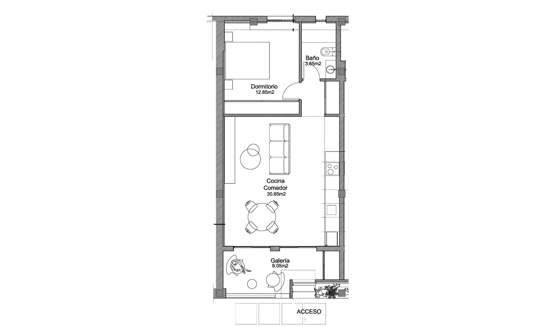
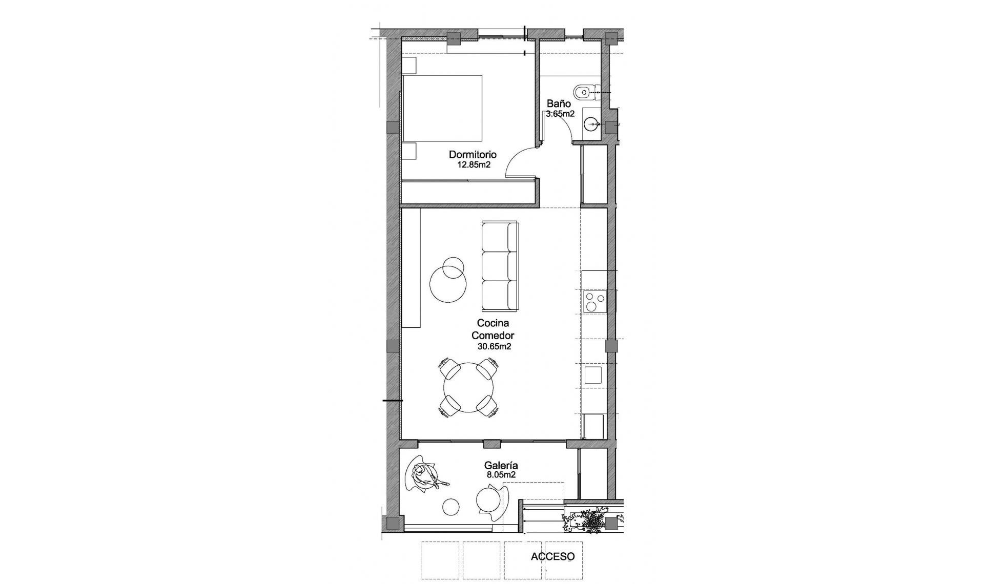
Modern New Build Apartments Just 150 m from the Sea in Torrevieja Exclusive Boutique Development by the Beach This new development offers just 3 modern apartments in a privileged location, only 150 meters from Los Náufragos beach in Torrevieja. Originally part of a commercial space built in 1989, the property has been fully renovated and transformed into stylish one-bedroom, one-bathroom homes designed for modern coastal living. Contemporary Design and Ready-to-Move-In Comfort Each apartment has been completely refurbished with top-quality finishes and is delivered fully furnished and equipped. Features include: Open-plan kitchen with furniture and appliances included Designer furniture, lighting, curtains, televisions, and decoration Air conditioning hot/cold by splits in both living room and bedroom Bathroom with furniture, mirror, and shower screen Front terrace with space for a table and chairs This turnkey solution ensures you can enjoy your new home without the hassle of furnishing or equipping it. Delivery is scheduled for February 2026, once licenses and utility connections are finalized, making it nearly a move-in-ready opportunity. Prime Central Location in Torrevieja Located just a short walk from the sea and 10 minutes from the city center, these apartments enjoy an unbeatable position. Within 300 meters you will find restaurants, supermarkets, pharmacies, banks, and public transport options. The Torrevieja Marina is only 1 km away, and essential services such as the Hospital de Torrevieja and Las Habaneras Shopping Center are within easy reach. Easy Access to Key Destinations Beach of Los Náufragos: 150 m Torrevieja Marina: 1 km Villamartín Golf Course: 10 km Alicante Airport: 45 km A Lifestyle by the Mediterranean Torrevieja is one of the most desirable destinations on the Costa Blanca, known for its sandy beaches, lively promenade, and excellent climate with more than 300 days of sunshine per year. Whether you are seeking a permanent residence, a holiday home, or an investment, this boutique development offers the perfect balance of comfort, style, and location. Secure Your Coastal Apartment Today Experience modern living just steps from the sea. Contact us now to arrange a visit and reserve your new home in Torrevieja before it’s too late.