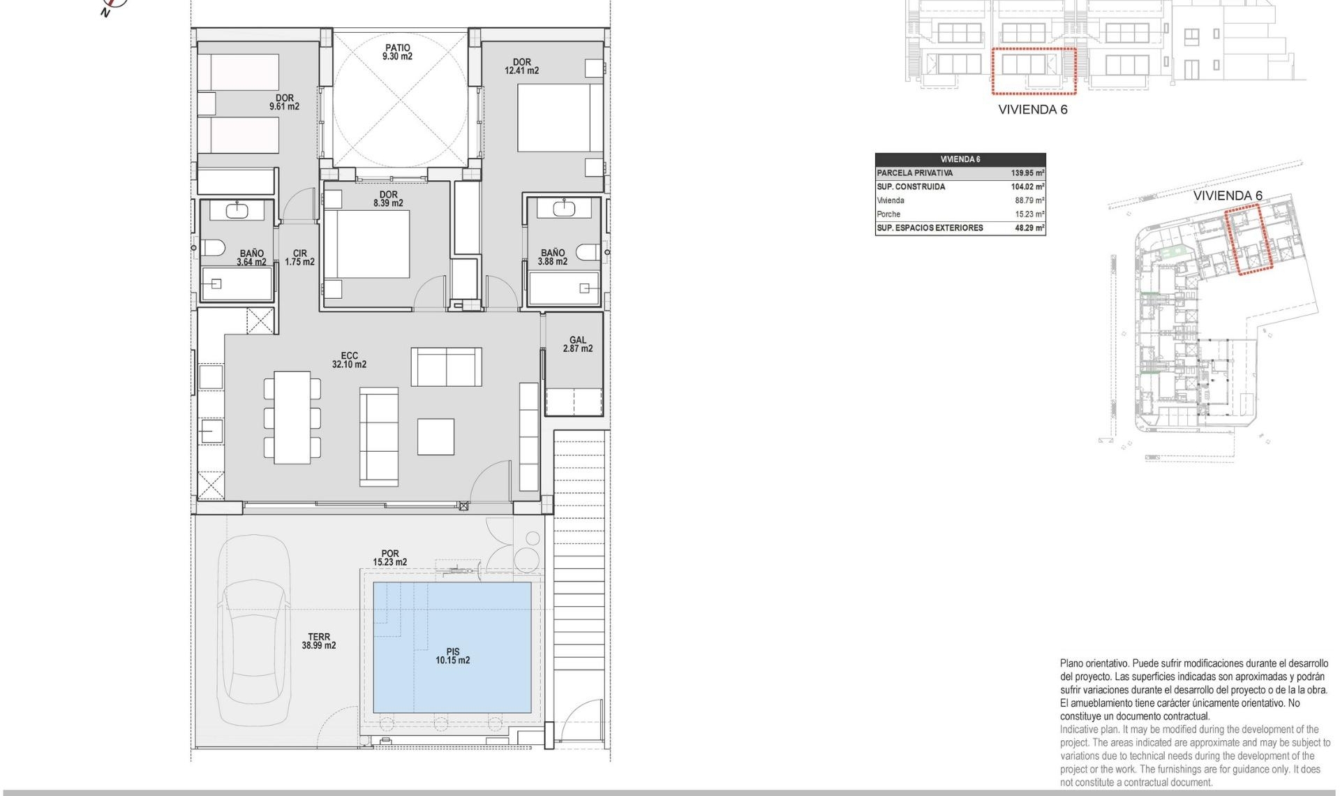
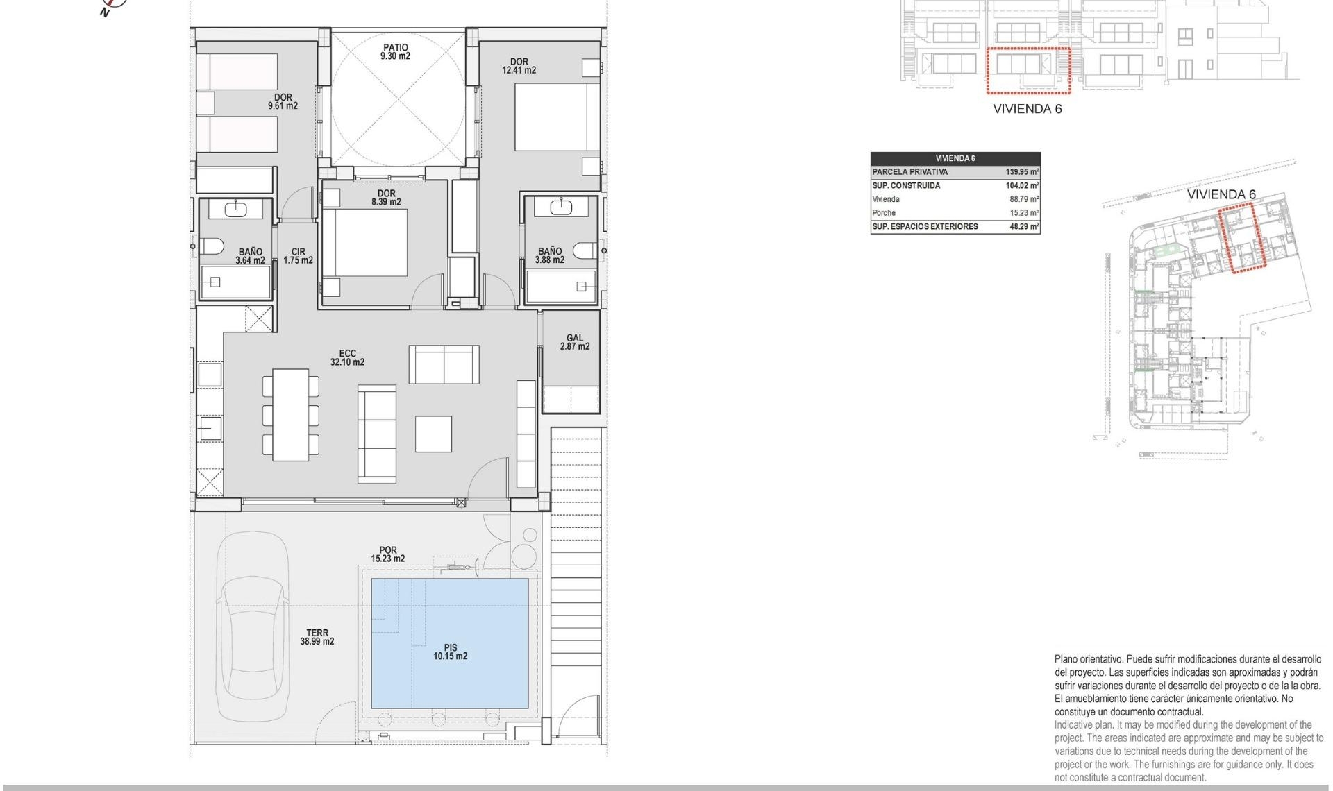
New Build Bungalows for Sale in Pilar de la Horadada 3 km from Beach Boutique Residential Development in Pilar de la Horadada Discover this exclusive new build residential complex of modern bungalows located in Pilar de la Horadada, the southernmost town of the Costa Blanca. This boutique project consists of only 14 carefully designed homes with 2 or 3 bedrooms and 2 bathrooms, offering an ideal combination of comfort, style and Mediterranean lifestyle. The development is situated in a quiet residential area within walking distance of the town center, allowing residents to enjoy easy access to shops, restaurants, supermarkets and essential services. Pilar de la Horadada is known for its welcoming atmosphere, traditional Spanish charm and lively main street filled with cafes, boutiques and charming squares. Modern Bungalows with Private Outdoor Spaces The homes have been designed to offer bright interiors and functional layouts, perfect for both permanent living and holiday use. Ground floor bungalows feature a private garden and private swimming pool, creating the perfect setting to enjoy outdoor living, sunbathing or entertaining family and friends. Top floor bungalows include a spacious terrace and a private rooftop solarium. The solarium comes with a summer kitchen and offers the option to add a private pool or jacuzzi at an extra cost, making it an ideal space to relax while enjoying the warm Mediterranean climate and open views. Each property includes a private parking space within the residential complex for added convenience. Quality Construction and Modern Features These new build homes are built with quality materials and modern installations designed to ensure comfort and energy efficiency throughout the year. Aluminum exterior carpentry with thermal break Fully fitted kitchens with included appliances Bathrooms equipped with mirrors and shower screens Interior and exterior LED lighting Hot water system with energy efficient aerothermal technology Pre installation for ducted air conditioning The combination of modern design and practical features makes these homes an excellent option for buyers looking for a contemporary property on the Costa Blanca. Excellent Location Close to Beaches and Golf Pilar de la Horadada enjoys a strategic location close to some of the best beaches and golf courses in the region. Torre de la Horadada beach 3 km Mil Palmeras beach 3 km Lo Romero Golf 6 km Region de Murcia International Airport 45 km Alicante Elche Airport 75 km The area also offers excellent road connections to nearby coastal towns, marinas and leisure facilities, making it a perfect base to explore the Costa Blanca and Costa Calida. Find Your New Home on the Costa Blanca If you are looking for a modern new build bungalow near the beach with excellent amenities and a fantastic location, this residential development in Pilar de la Horadada is an outstanding opportunity. Contact us today for more information or to schedule a visit.