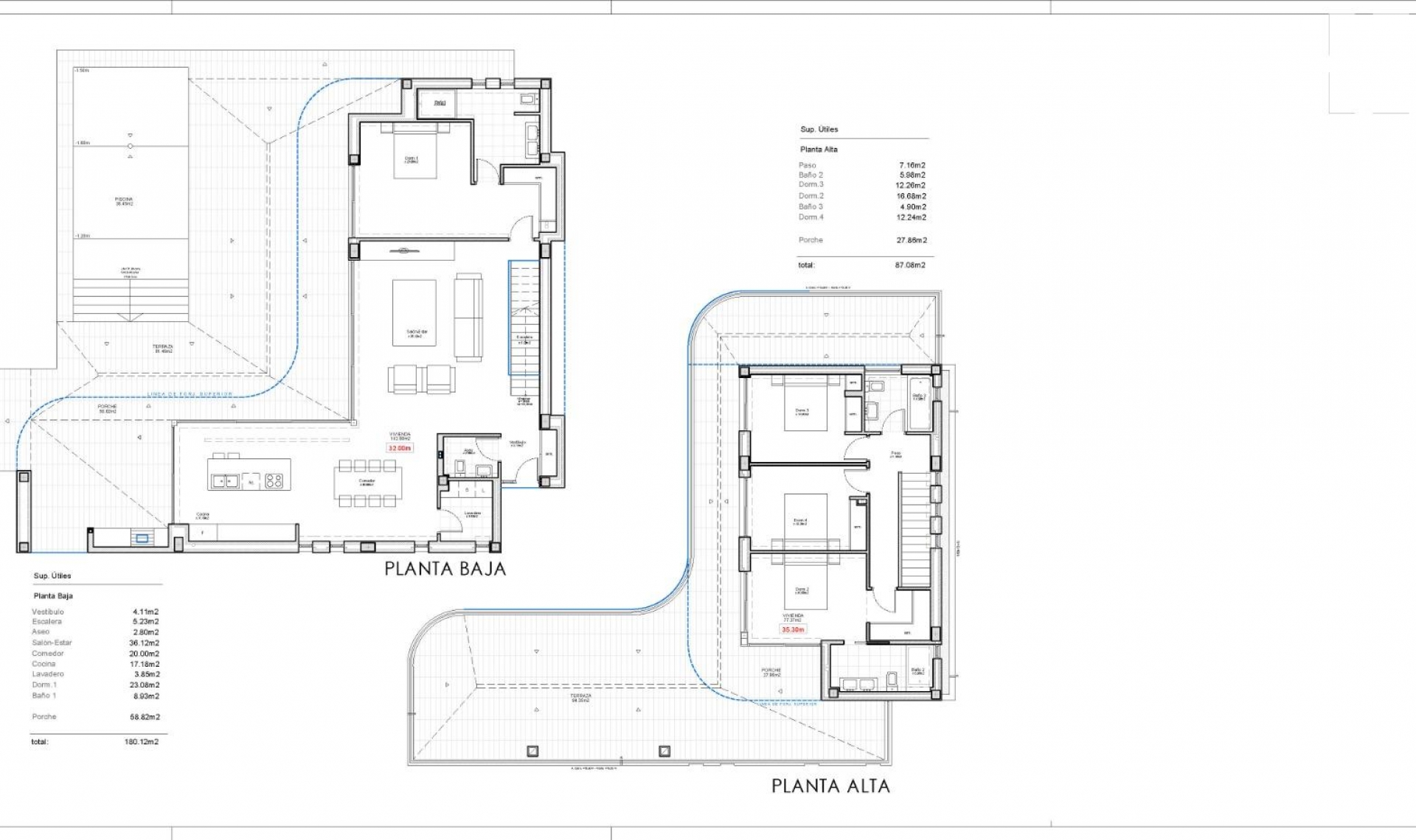
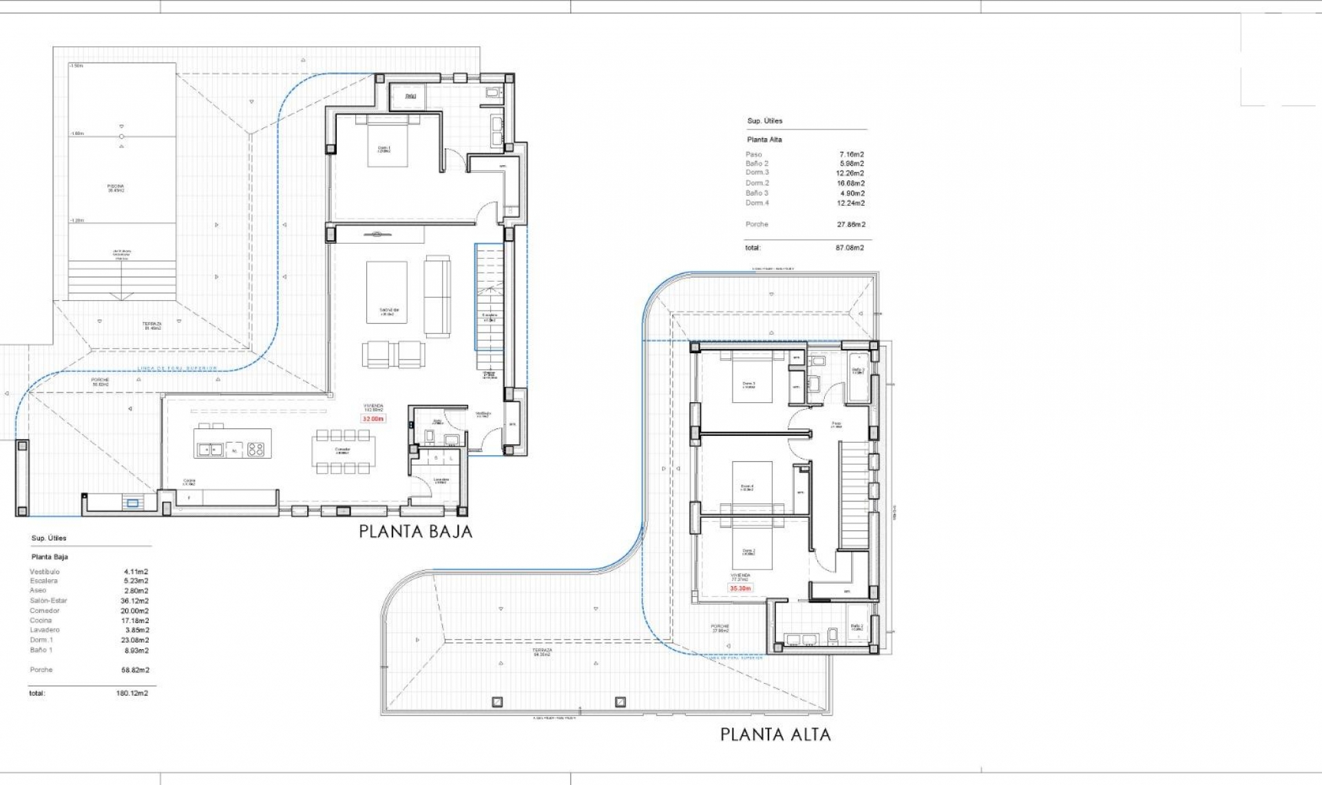
Luxusní moderní dům v srdci Moraira-Teulada: moderní středomořské útočiště Objevte úžasný rodinný dům v malebném městečku Moraira-Teulada na pobřeží Costa Blanca. Tato moderní nemovitost nabízí vynikající kombinaci luxusu, pohodlí a přírodních krás a stojí na velkorysém pozemku, který poskytuje soukromí i panoramatický výhled na okolní středomořskou krajinu. Moraira-Teulada je proslulá svou okouzlující pobřežní atmosférou, živou místní kulturou a snadnou dostupností klíčových služeb. Architektonická dokonalost s panoramatickým výhledem Tento architektonicky navržený dům je moderním mistrovským dílem, které harmonicky ladí s okolní přírodou. Design domu, postaveného ze železobetonu a zvýrazněného dřevěnými detaily, plynule integruje velké skleněné panely, které maximalizují přirozené světlo a rámují úchvatný výhled na moře a bujnou zeleň. Dům je postaven na různých terasách, které doplňují přirozený sklon pozemku a nabízejí nerušený výhled z každého úhlu. Prostorné vnitřní uspořádání pro elegantní bydlení Srdcem tohoto domu je přízemí s prostorným otevřeným obývacím prostorem o rozloze 36 m², který navazuje na rozlehlou venkovní terasu o rozloze 81 m². Špičková kuchyně a jídelní kout o rozloze 20 m² jsou vybaveny nejmodernějšími spotřebiči, takže jsou ideální pro každodenní život i zábavu. V horním patře nabízí hlavní apartmá naprosté soukromí se šatnou, vlastní koupelnou a přístupem na soukromou terasu. Další tři ložnice, každá s vlastní koupelnou a terasou, poskytují luxusní pohodlí pro členy rodiny nebo hosty. Výjimečné venkovní prostory a nekonečný bazén Venkovní prostory jsou navrženy pro relaxaci a zábavu, včetně rozsáhlé terasy o rozloze 81 m², která je ideální pro venkovní stolování nebo lenošení na středomořském slunci. Terasa vede k úžasnému nekonečnému bazénu, který splývá s horizontem a vytváří oázu klidu. Pečlivě upravená zahrada plná původních rostlin a stromů umocňuje klidnou atmosféru domu a poskytuje další soukromí. Udržitelné a energeticky úsporné prvky Tato nemovitost je vybavena udržitelnými prvky, včetně moderního tepelného čerpadla vzduch-voda, podlahového vytápění a kanálové klimatizace. Vysoce účinná okna a izolace zajišťují energetickou účinnost a celoroční pohodlí. Výhodná poloha v blízkosti klíčových atrakcí letiště Alicante: 90 km Golfové hřiště La Sella: 15 km Přístav Moraira: 2 km Nákupní centra: Zažijte moderní luxus a klid v tomto výjimečném domě, který se nachází ve vyhledávané oblasti Moraira-Teulada. 291