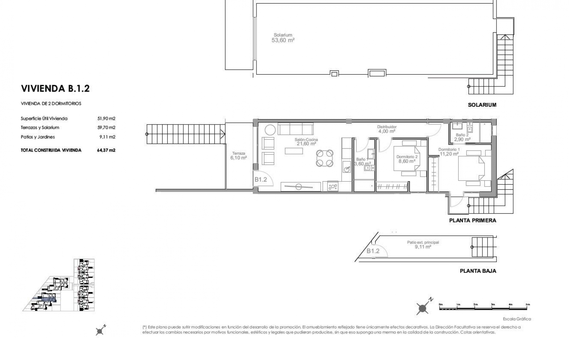
New Build Homes Just 200 Metres from the Beach in Puerto de Mazarrón Exclusive coastal living in Costa Cálida Introducing a new residential development of modern homes in Puerto de Mazarrón, located only 200 metres from the beautiful Playa Negra. Situated in one of the most sought after coastal areas of the Murcia region, this project offers an exceptional opportunity to enjoy Mediterranean living close to the sea, essential amenities and natural surroundings. Puerto de Mazarrón is known for its stunning beaches, crystal clear waters, charming marina and relaxed atmosphere. With excellent services, outdoor leisure options and a warm climate year round, it is an ideal destination for both permanent living and holiday escapes. Modern design and functional layouts This exclusive development is composed of 30 contemporary homes featuring 2 bedrooms and 1 or 2 bathrooms, thoughtfully designed to provide comfort, style and efficiency. The low rise complex includes ground floor units with private terraces and gardens, as well as first floor homes with terraces and private rooftop solariums. Houses offer private parking spaces either on the property or within the residence. Homes are oriented to maximize natural light, with open plan living spaces, large windows and premium finishes. The first phase offers customizable homes with functional layouts that can be personalized to suit your lifestyle needs. Ground floor homes include a private garden, rear patio and on plot parking or community parking. Top floor homes offer a private access area on ground floor, first floor terrace and rooftop solarium, plus allocated parking. Optional extras include private pools on ground floor terraces or jacuzzis on solariums. High quality specifications Each property includes Reinforced entrance door Pre installation for ducted air conditioning Complete bathrooms with furniture, mirror and shower screens Outdoor spaces designed for barbecues, pergolas and chill out areas This residential community offers a safe, family friendly and established environment, within walking distance of supermarkets, schools, medical services, parks and the beach. Prime location in Puerto de Mazarrón Distances to key points of interest Playa Negra 0.2 km Mazarrón Marina 2 km Mazarrón Park Shopping Centre 5 km Cartagena 35 km Murcia City 70 km Murcia Corvera Airport 45 km Golf courses Camposol and Hacienda del Álamo 25–35 km Enjoy water sports, hiking and cycling in the nearby Sierra de las Moreras, and discover the best of the Costa Cálida lifestyle. Make the Mediterranean your home Do not miss the opportunity to secure a new build property just steps from the beach in Puerto de Mazarrón. Contact us today for availability, details and viewing appointments. 291