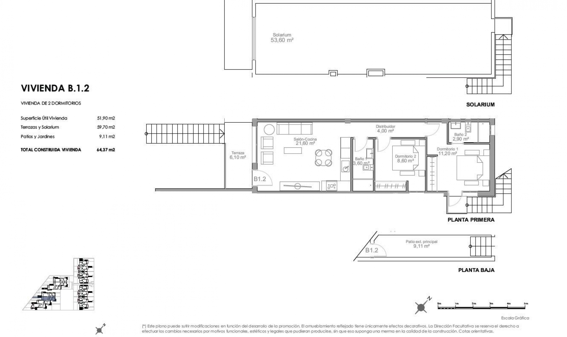
Novostavby pouhých 200 metrů od pláže v Puerto de Mazarrón Exkluzivní pobyt na pobřeží Costa Cálida Představujeme novou rezidenční zástavbu moderních domů v Puerto de Mazarrón, která se nachází pouhých 200 metrů od krásné pláže Playa Negra. Tento projekt, který se nachází v jedné z nejvyhledávanějších pobřežních oblastí regionu Murcia, nabízí výjimečnou příležitost užít si středomořský život v blízkosti moře, základních služeb a přírodního prostředí. Puerto de Mazarrón je známé svými nádhernými plážemi, křišťálově čistou vodou, okouzlujícím přístavem a uvolněnou atmosférou. Díky vynikajícím službám, možnostem outdoorových aktivit a teplému podnebí po celý rok je ideální destinací jak pro trvalé bydlení, tak pro dovolenou. Moderní design a funkční dispozice Tento exkluzivní projekt se skládá z 30 moderních domů se 2 ložnicemi a 1 nebo 2 koupelnami, které jsou promyšleně navrženy tak, aby poskytovaly komfort, styl a efektivitu. Nízkopodlažní komplex zahrnuje jednotky v přízemí s vlastními terasami a zahradami, stejně jako domy v prvním patře s terasami a soukromými střešními solárii. Domy nabízejí soukromá parkovací místa buď na pozemku, nebo v rámci rezidence. Domy jsou orientovány tak, aby maximalizovaly přirozené světlo, s otevřenými obytnými prostory, velkými okny a prémiovými povrchovými úpravami. První fáze nabízí přizpůsobitelné domy s funkčními dispozicemi, které lze přizpůsobit vašim životním potřebám. Domovy v přízemí zahrnují soukromou zahradu, zadní terasu a parkovací místo na pozemku nebo společné parkoviště. Domovy v nejvyšším patře nabízejí soukromý přístup v přízemí, terasu v prvním patře a střešní solárium, plus přidělené parkovací místo. Mezi volitelné doplňky patří soukromé bazény na terasách v přízemí nebo vířivky na soláriích. Vysoká kvalita provedení Každá nemovitost zahrnuje Zesílené vstupní dveře Předinstalace pro kanálovou klimatizaci Kompletní koupelny s nábytkem, zrcadlem a sprchovými zástěnami Venkovní prostory určené pro grilování, pergoly a odpočinkové zóny Tato rezidenční komunita nabízí bezpečné, rodinné a zavedené prostředí, v docházkové vzdálenosti od supermarketů, škol, lékařských služeb, parků a pláže. Prvotřídní lokalita v Puerto de Mazarrón Vzdálenosti od hlavních zajímavých míst Playa Negra 0,2 km Přístav Mazarrón 2 km Nákupní centrum Mazarrón Park 5 km Cartagena 35 km Město Murcia 70 km Letiště Murcia Corvera 45 km Golfová hřiště Camposol a Hacienda del Álamo 25–35 km Užijte si vodní sporty, turistiku a cyklistiku v nedaleké Sierra de las Moreras a objevte to nejlepší z životního stylu Costa Cálida. Udělejte si Středomoří svým domovem Nenechte si ujít příležitost pořídit si novostavbu jen pár kroků od pláže v Puerto de Mazarrón. Kontaktujte nás ještě dnes a získejte informace o dostupnosti, podrobnostech a termínech prohlídek. 291